Descrivere e comunicare il progetto d'architettura

Alternanza Scuola-Lavoro | progetto 0035 | a.a 2016/2017


Dipartimento di Architettura e Progetto
Centro Progetti DiAP | attività di ASL

Responsabile Maurizio Alecci

sede operativa:
via Flaminia 359, 00196 Roma
T (+39) 06 32101242
progettidiap@uniroma1.it

Descrizione del Progetto (progetto [0035] del catalogo Sapienza)

Una fase importante dell’iter progettuale è la comunicazione del progetto d’architettura, in particolare per opere pubbliche o opere che hanno un forte impatto importante sulla città, che ne permetta la completa comprensione, attraverso l’analisi degli aspetti sociali, economici e funzionali.
L’esercitazione svolta con gli studenti di cinque diverse scuole ha portato all’acquisizione di competenze relative a tutti gli aspetti della comunicazione del progetto di architettura, quali il programma edilizio, la localizzazione, l'accessibilità, il dimensionamento, gli aspetti funzionali, l'organizzazione degli spazi, i costi e la tempistica progettuale e realizzativa.
Inoltre, gli studenti hanno acquisito competenze di base su grafica e comunicazione, sull’uso di programmi per la presentazione di progetti, alcune nozioni di base sul montaggio (timeline, transizioni, colonne sonore), elaborando in piccoli gruppi alcuni prodotti multimediali attraverso l’uso di software grafici e CAD, programmi per la realizzazione di presentazioni e il montaggio di slideshow.

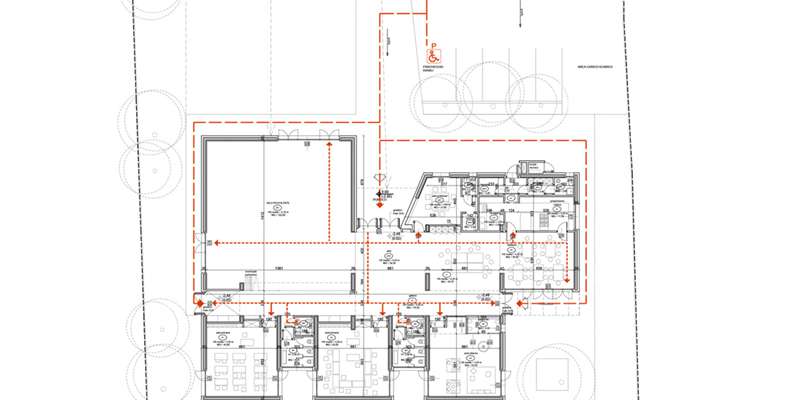
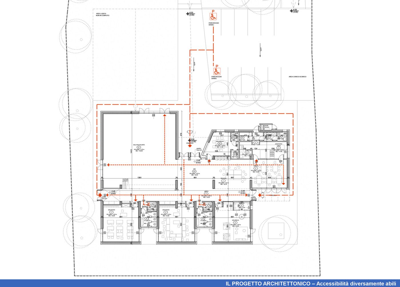
Il tema scelto per l’attività degli studenti è il progetto della nuova scuola primaria e dell’infanzia di Accumoli (link alla pagina del progetto), elaborato da Sapienza con il coordinamento tecnico del Centro Progetti DiAP, quindi il tema specifico dell’esercitazione riguardava la ricostruzione di un importante edificio pubblico a seguito della devastazione del territorio a causa del sisma del 2016.


Il calendario

pcto2021
Istituto d'istruzione superiore di via Silvestri, Roma
dal 15 al 18 maggio 2017 - 6 studenti
ASL2018
Liceo artistico Caravaggio, Roma
dll'8 all'11 maggio 2017 - 6 studenti
ASL2017
Istituto tecnico Michelangelo Buonarroti, Frascati
Dal 10 al 13 aprile 2017 - 6 studenti


I materiali forniti agli studenti

00_ASL
01_ASL
02_ASL
03_ASL
04_ASL
05_ASL
06_ASL
07_ASL
08_ASL
09_ASL
10_ASL
11_ASL
12_ASL
13_ASL
14_ASL
15_ASL
16_ASL
17_ASL
18_ASL
19_ASL
20_ASL
21_ASL
22_ASL
23_ASL
24_ASL
25_ASL
26_ASL